MABONENG PRECINCT

MABONENG PRECINCT

 

LOCATION
TYPE
STATUS
AREA
CLIENT
COLLABORATOR
Johannesburg, South Africa
Masterplan; Comm.; Resi.
Unbuilt
2980 m²
Undisclosed
Keiji Ashizawa Design

 

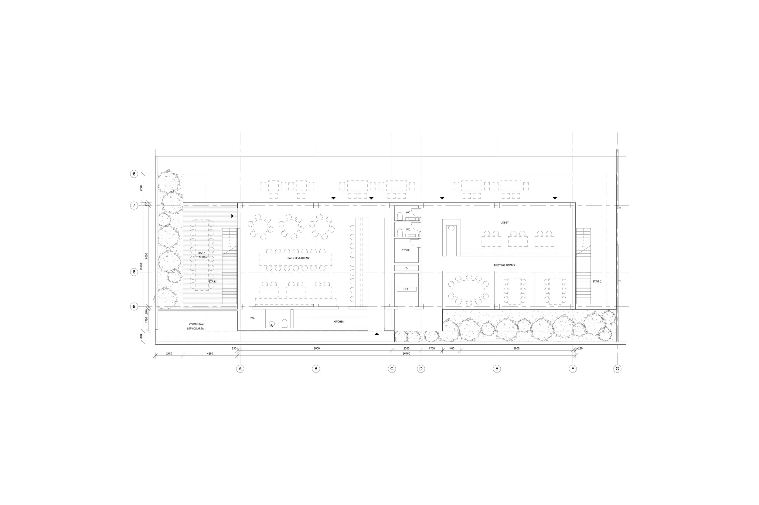
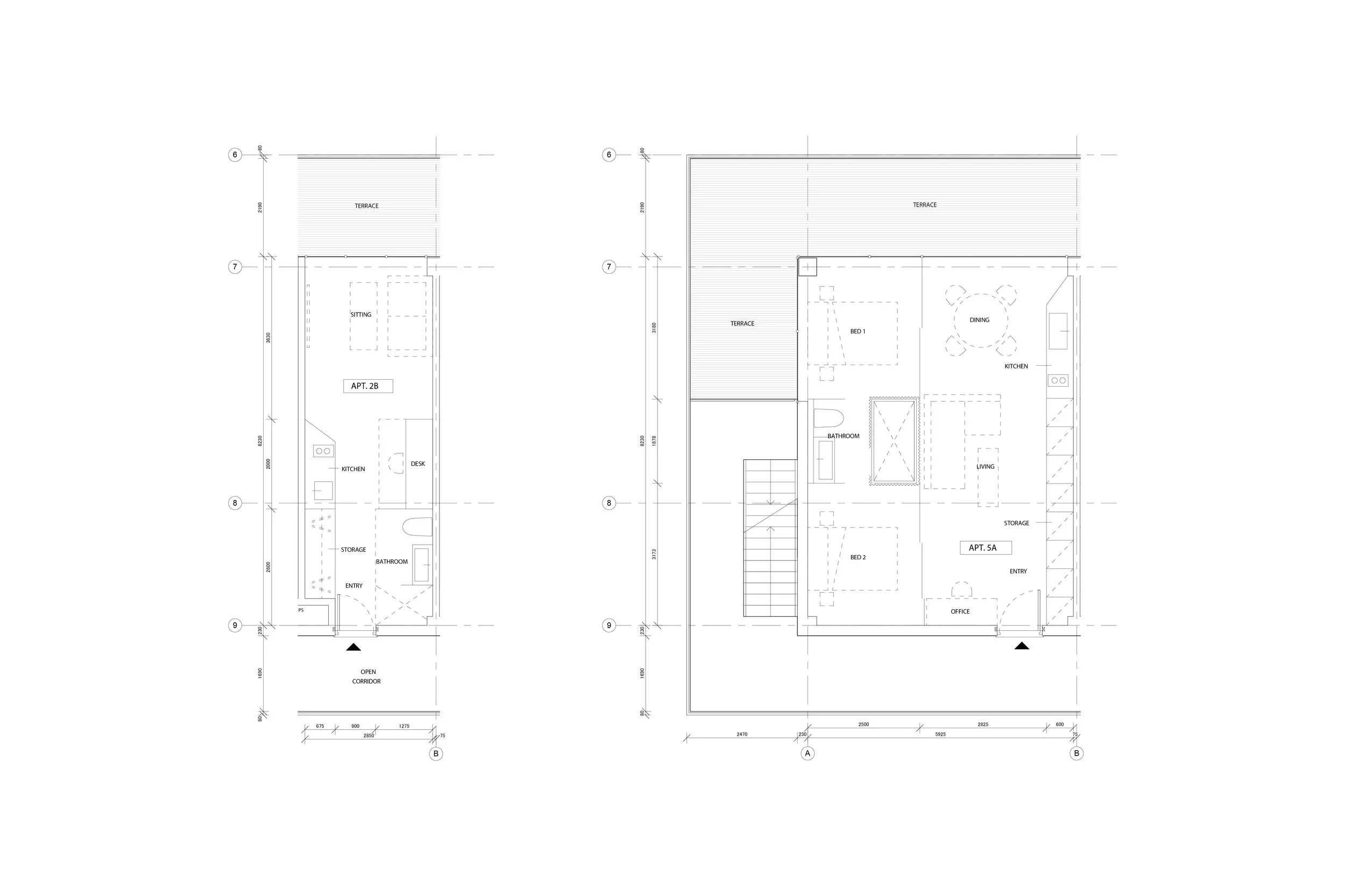
An urban regeneration project located in the creative downtown neighbourhood of Maboneng, the programme includes an apartment building, cafe, public workshop and landscaped areas. With the existing building stock made up from a collection of old manufacturing buildings, the proposal draws from the gritty aesthetic of its surrounds.

The arrangement of new and retrofitted structures consciously retain the patchwork nature of the neighbourhood, welcoming spontaneity and creative expression - something the Maboneng Precinct is already reowned for.

 
 
 

DRAWINGS

 

RELATED WORK

Previous
Previous

SIMON JAMES SHOWROOM & OFFICE

Next
Next

OPENFIELD HOUSE